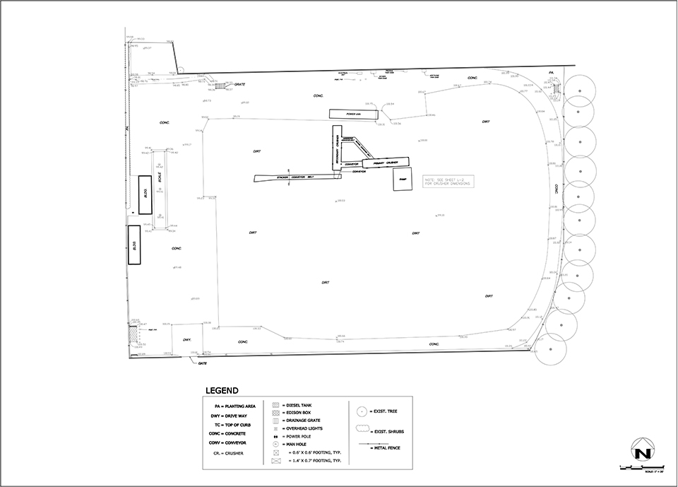
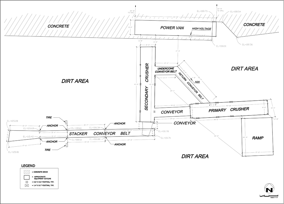
Ewles Materials


  • Site Measurement Survey:
    • Materials Lot
  • As-Builts including:
    • Rock Crusher dimensions
    • concrete driveways
    • weighing station
    • site storage and utilities
VISIT WEBSITE
March 15, 2016