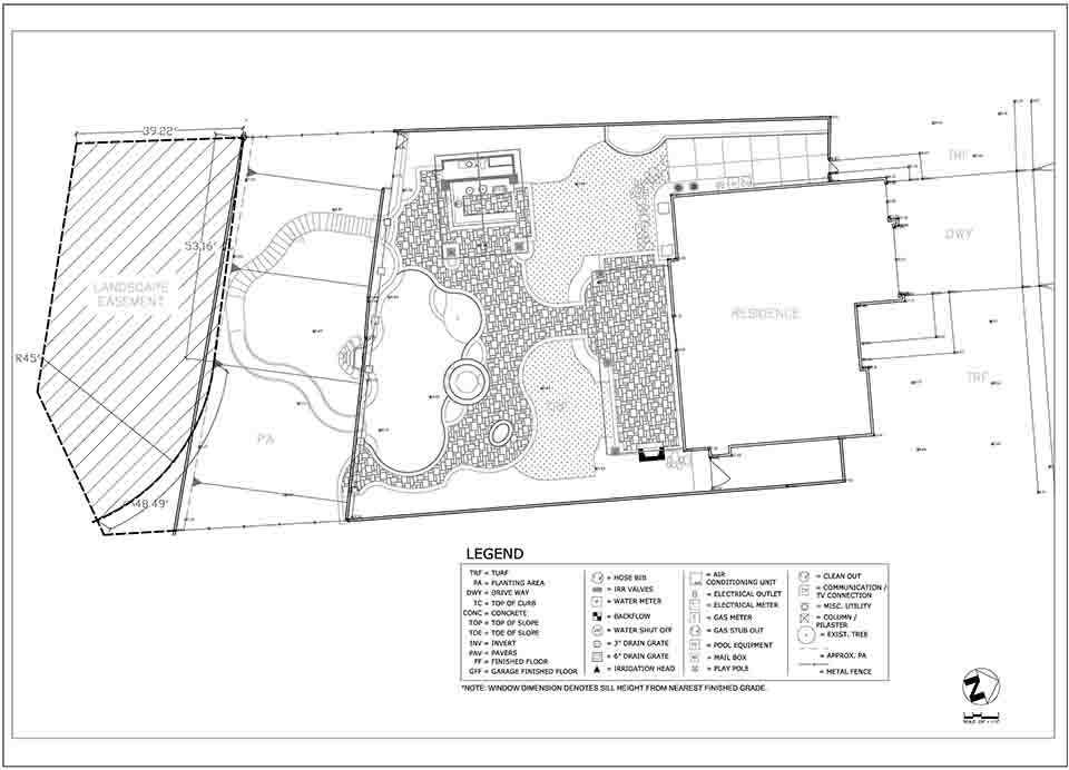
Via Sevilla


  • Site Measurement Survey
    • Landscape Easement
    • Slope Spot Elevations
VISIT WEBSITE
September 10, 2015